Charmant Chalet en Pierre à Vendre à Le Châble – Retraite Alpestre Unique
Situé dans le quartier ensoleillé de Villette à Le Châble, Suisse, ce superbe chalet en pierre rénové offre un refuge idyllique au cœur des Alpes suisses. Présenté par Omnia Immobilier Verbier, ce bien unique allie charme traditionnel et confort moderne, une opportunité rare pour les amateurs de montagne.
Caractéristiques du Bien
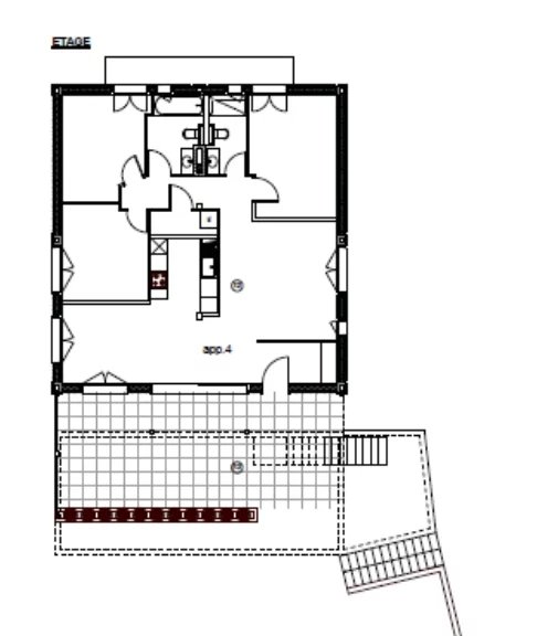
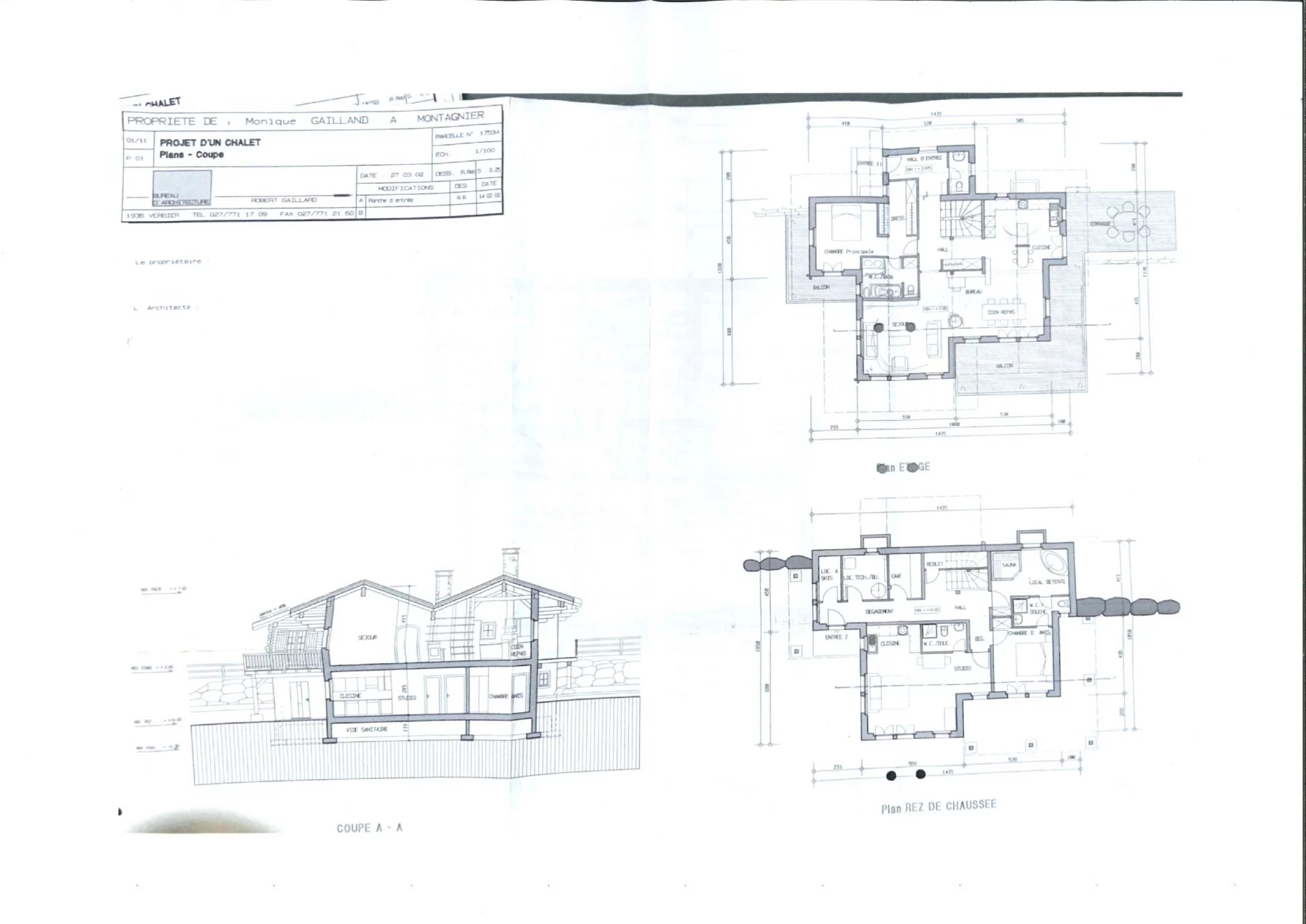
Appartement Principal : Un espace de vie ouvert, comprenant salon, cuisine et salle à manger, s’ouvre sur une terrasse ensoleillée, idéale pour profiter des vues alpines. Un poêle traditionnel « pierre ollaire » ajoute une touche chaleureuse et authentique. Deux spacieuses chambres et une salle de bain complète avec buanderie complètent cet étage.
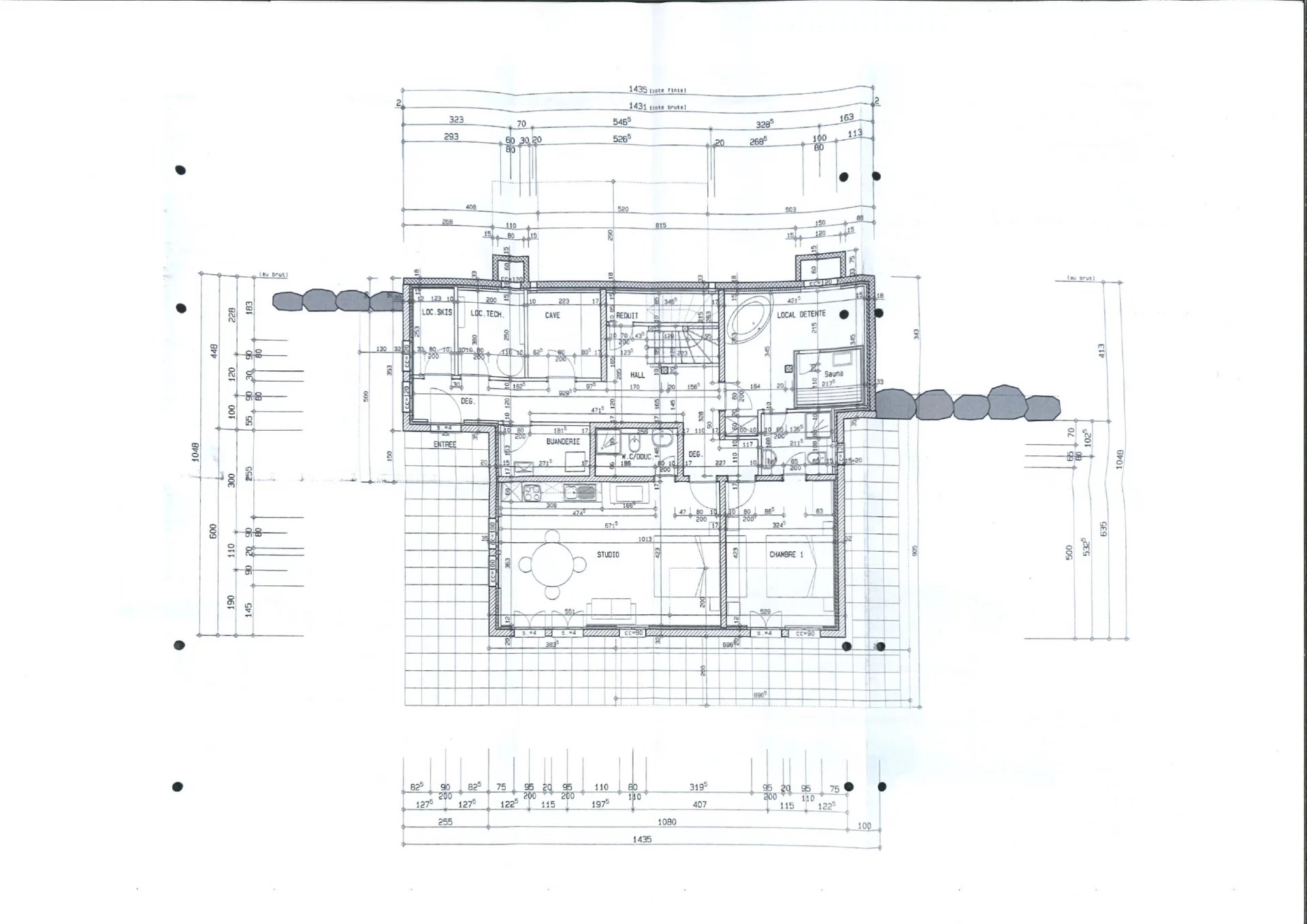
Deux Studios Indépendants : Entièrement rénovés et aménagés avec soin, ces studios autonomes offrent une excellente opportunité locative ou un hébergement pour invités.
Espace Extérieur : Une terrasse exposée ouest constitue un cadre idéal pour des repas en plein air et des moments de détente face à un panorama exceptionnel sur les montagnes.
Cave Voutée : Un espace de stockage généreux qui pourrait être transformé en une cave à vin ou un espace de dégustation privé.
Emplacement Idéal à Le Châble
À seulement 5 minutes à pied du téléphérique Le Châble-Verbier, permettant un accès direct au domaine skiable de Verbier et des 4 Vallées.
À proximité des commerces, restaurants et commodités locales, parfait pour une résidence principale ou secondaire.
Disponible pour les citoyens suisses et détenteurs de permis B & C.
Ce chalet authentique dans les Alpes suisses offre une alliance parfaite entre tradition et modernité, une opportunité rare dans l’un des villages de montagne les plus prisés de Suisse.
Ne tardez pas, contacter nous pour votre visite :
M. Dave ELLIOTT
OMNIA Immobilier
+41 78 257 47 45
dave.elliott@omnia.ch
























































































































