OMNIA Immobilier vous présente cet attique situé au 4ème étage de la nouvelle résidence « Le Palladio », composée de deux immeubles élégants, offrant un cadre de vie moderne et confortable au cœur d’un quartier calme de Conthey.
Architecture contemporaine et finitions haut de gamme.
Exposition optimale et vue dégagée depuis un balcon de 45.50 m² couvert.
Emplacement idéal, à proximité des commerces, écoles et transports en commun.
Accès rapide à l’autoroute et arrêt de bus à quelques pas.
Bornes électriques disponibles pour un mode de vie durable et connecté (sur demande).
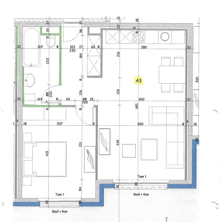
Descriptif de l’appartement :
Hall d’entrée spacieux, offrant une belle fluidité dans l’espace.
Grande pièce avec penderie.
Grande pièce de vie ouverte, avec séjour lumineux et accès direct au balcon.
Cuisine ouverte moderne, parfaitement intégrée à l’espace de vie.
2 chambres avec accès au balcon, dont une suite parentale avec salle de bain privative et toilettes.
Salle de douche supplémentaire, équipée d’une colonne de lavage.
Grand balcon couvert de 45.50 m², idéal pour profiter d’une vue imprenable et de l’ensoleillement optimal.
Options de stationnement (en sus du prix de vente) :
Place de parking couverte + grand réduit (hauteur 1,79 m) à CHF 35’000.-
Place de parking couverte extérieure (hauteur 2,4 m) à CHF 25’000.-
Place de parking extérieure découverte à CHF 10’000.-
Bornes de recharge pour véhicules électriques disponibles sur demande.
Contactez-nous dès aujourd’hui pour plus d’informations et pour découvrir les derniers appartements disponibles de cette magnifique promotion en cours de finitions !
Le dossier de vente est téléchargeable directement sur notre site omnia.ch.
Pour plus d’informations :
Stéphane Ferreira
OMNIA Immobilier – Martigny
stephane.ferreira@omnia.ch
+41 78 239 20 28










































































