OMNIA IMMOBILIER RIVIERA vous présente à la vente cette splendide villa individuelle et familiale sur les hauteurs de Blonay.
Erigée sur 3 niveaux, elle est située dans un quartier résidentiel calme et prisé, à seulement quelques minutes du centre du village, des écoles et des transports publics.
Construite en 2006 en bordure d’un terrain agricole non constructible, la villa a fait l’objet de plusieurs rénovations et est au bénéfice de finitions haut de gamme.
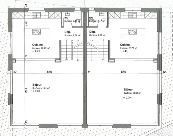
La pièce de vie offre des volumes très généreux et bénéficie d’une luminosité optimale grâce à ses larges ouvertures vitrées et son orientation au Sud.
La cuisine semi-ouverte est entièrement agencée et équipée des dernières technologies, avec tous les équipements de hauts standings. Véritable pièce maîtresse de la villa, elle séduira tous les amateurs de cuisine et les épicuriens.
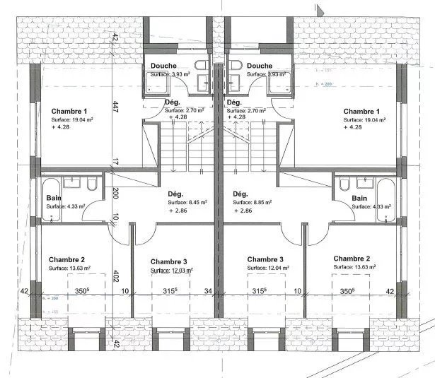
La villa offre quatre chambres à coucher dont une suite parentale avec dressing indépendant et salle de douche / WC, ainsi qu’une salle de douche et un WC visiteurs.
Entièrement excavée, elle dispose de nombreuses surfaces utiles dont une pièce chauffée pouvant faire office de chambre d’amis ou salle de détente.
Un vaste jardin plane joliment arborisé et clôturé, offre une grande privacité et vous permettra de profiter pleinement des extérieurs en toute saison.
Un garage box double avec porte électrique et trois places de parc extérieures complètent le tout.
Venez découvrir sans plus tarder cette propriété alliant charme et confort moderne, idéale pour l’épanouissement d’une famille.
N’hésitez pas à nous contacter pour une visite prochainement.
Pour plus d’informations ou pour la planification d’une visite sur place, n’hésitez pas à contacter :
Julie DENERVAUD
OMNIA IMMOBILIER RIVIERA
julie.denervaud@omnia.ch
+41 78 671 27 24














































































